– Indirizzo: Viale Africa
– Edificio: signorile, 1955
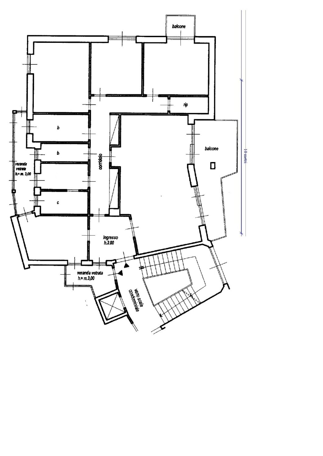
– Piano: quinto di cinque (attico), con ascensore
– Superficie coperta: mq 185
– Superficie scoperta: terrazza mq 20
– Stato manutentivo: da ristrutturare
– Riscaldamento: autonomo
– Esposizione: esterna
– Composizione: doppi ingressi, volendo divisibile, salone doppio, tre camere, studio, cucina tinello, zona servizi, ripostiglio, due verande, terrazza e balcone, con.
L’immobile non presenta barriere achitettoniche e il garage è al piano terra nel cortile condominiale, con ampio spazio di ulteriore parcheggio.
– Pertinenze: Completa la proprietà AMPIO BOX AUTO.
– Prezzo di vendita richiesto: Euro 980.000
